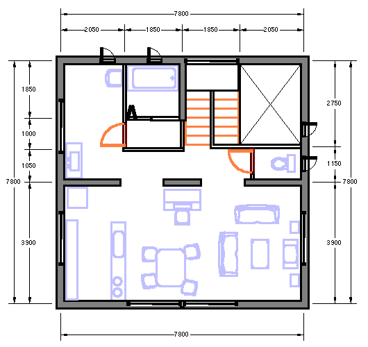
ŠÔŽæ‚è

4ŠÔ x 4.5ŠÔ
Ž{H–ÊÏ 34’Ø
˕ʊԎæ‚èˆÄ

1F

yŠO’f”MEƒKƒ‹ƒoƒjƒEƒ€’£‚èz
ŒºŠÖ



ƒgƒCƒŒ
madori_1f_rc_z.gif

2F

yŠO’f”MEƒKƒ‹ƒoƒjƒEƒ€’£‚èz
20ôLDk
5ôô–ÊŠ/ƒ‰ƒ“ƒhƒŠ[
•—˜C
’EˆßŠ
ƒgƒCƒŒ
madori_2f_rc_z.gif

gaikan_rc_z.gif

return